Oferujemy do wynajmu kompleks magazynowo – biurowy, idealny dla firm poszukujących funkcjonalnej przestrzeni do prowadzenia działalności logistycznej, produkcyjnej oraz administracyjnej w jednej lokalizacji.
Położony w miejscowości Wronki, powiat szamotulski, woj. wielkopolskie.
Idealny pod centrum logistyczne, składowanie długoterminowe, dystrybucję/przeładunki czy bazę transportową.
Obiekt przystosowany jest także do produkcji ciężkiego metalu i przemysłu ciężkiego z suwnicami natorowymi oraz ciągami jezdnymi przystosowanymi do transportu ciężkiego.
OBIEKT PRZEMYSŁOWY
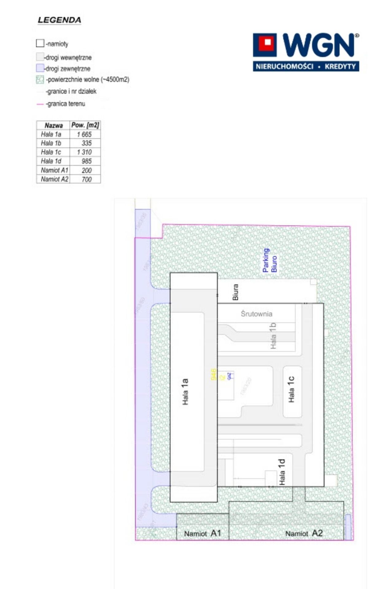
Na zabudowę obiektu przemysłowego o łącznej powierzchni użytkowej 4.295 m2 składają się:
- Hala nr 1a – główna hala przemysłowa o powierzchni 1.665 m2, wyposażona w dwie suwnice 10 t, posiadająca dwie bramy wjazdowe, wysokość pomieszczenia: 10,5 m.
- Hala nr 1b – o powierzchni 335 m2, ze śrutownią wyposażoną w maszynę do piaskowania metalu dużych gabarytów, wysokość pomieszczenia: 6 m
- Hala nr 1c – o powierzchni 1.310 m2, produkcyjna, wysokość pomieszczenia: 6 m
- Hala 1d – o powierzchni 985 m2, produkcyjno-magazynowa, wysokość pomieszczenia: 6 m,
DODATKOWO
- Namiot o powierzchni 900 m2, służący jako magazyn, z posadzką wyłożoną kostką brukową, trylinką oraz doprowadzonymi ciągami jezdnymi dla wózków widłowych (asfalt).
ATUTY:
- Swobodny wjazd i manewrowanie TIR,
- Duże place manewrowe i magazynowe,
- Dojazd drogą asfaltową,
- Brak ograniczeń dla transportu ciężkiego.
Bramy przemysłowe częściowo przesuwne, a częściowo rozwierane bramy stalowe.
Posadzki betonowe, przemysłowe.
BUDYNEK SOCJALNO-BIUROWY
Budynek o powierzchni użytkowej 583 m2, dwukondygnacyjny.
PARTER: szatnie, stołówkę, łaźnie, toalety, 4 magazyny podręczne. Parter budynku połączony bezpośrednio z halą produkcyjną.
PIĘTRO: pomieszczenia biurowe (8 szt.), z aneksem kuchennym, salką konferencyjną oraz 3 toaletami.
NIERUCHOMOŚĆ – gruntowa:
– teren obejmuje grunt o łącznej powierzchni 1,0086 ha
– nieruchomość nie jest objęta miejscowym planem zagospodarowania przestrzennego,
DOSTĘPNE MEDIA
– prąd: możliwość zapewnienia mocy przyłączeniowej 250 kW
– woda
– gaz (przyłącze)
– kanalizacja sanitarna
– światłowód
DOJAZD
Dojazd do obiektu odbywa się drogą o nawierzchni asfaltowej (ul. Powstań Wielkopolskich). W najbliższej okolicy nie występują ograniczenia w ruchu pojazdów ciężarowych.
Ciągi jezdne na terenie obiektu wyłożone kostką brukową lub asfaltem.
LOKALIZACJA
Obiekt znajduje się na terenie przemysłowym w miejscowości Wronki, w sąsiedztwie innych zakładów przemysłowych, m.in. Spomasz Wronki (aktualnie Grupa Ferrum) który m.in. specjalizuje się w projektowaniu i produkcji specjalistycznych urządzeń dla przemysłu spożywczego, wiertnictwa naftowego i oczyszczalni ścieków.
Odległość od większych miast:
– Poznań 60 km
– Piła 67 km
– Wrocław 220 km
– Warszawa 370 km
– obwodnica S11 47km
– autostrada A2 59 km
CENA NAJMU i OPŁATY:
64.000 zł netto/ mies. hale magazynowe
12.000 zł miesięczny podatek od nieruchomości
22.000 zł opłata roczna za wieczyste użytkowanie
Dodatkowo: wynajem biura/budynku socjalnego wg. indywidualnych ustaleń.
Istnieje możliwość obsługi terenu/rozładunków wg. indywidualnych ustaleń.
Po więcej informacji zapraszamy do kontaktu telefonicznego.
Nr licencji agenta prowadzącego ofertę: 24516
Grupa WGN Największy Polski Koncern Obrotu Nieruchomościami Poznań, ul. Krauthofera 18 lok. 56.
Pomagamy bezpłatnie w uzyskaniu kredytu hipotecznego na zakup nieruchomości oraz możliwość wyboru najkorzystniejszej oferty spośród kilkunastu banków. Przy transakcji zakupu zapewniamy obsługę notarialną.
Informacje dotyczące nieruchomości zostały sporządzone na podstawie oświadczeń i nie są ofertą w rozumieniu przepisów prawa, mają charakter wyłącznie informacyjny i mogą podlegać aktualizacji, zalecamy ich osobistą weryfikację.
Wszystkie teksty, rysunki, zdjęcia oraz wszystkie inne informacje opublikowane na niniejszych stronach podlegają prawom autorskim Grupa WGN Koncern Obrotu Nieruchomościami Poznań, ul. Krauthofera 18 lok. 56. Wszelkie kopiowanie, dystrybucja, elektroniczne przetwarzanie oraz przesyłanie zawartości bez zezwolenia zabronione. Wszelkie prawa zastrzeżone.




















