Lokal usługowy na wynajem, nowe osiedle Cavallia, doskonała lokalizacja.

WGN Poznań Krauthofera oferuje do wynajmu lokal usługowy w bardzo dobrej lokalizacji na nowopowstałym osiedlu Cavallia w pobliżu ulic: Matejki, Grunwaldzkiej i Ułańskiej. Jest to miejsce przeżywające swój renesans, blisko Parku Wilsona, tuż przy Międzynarodowych Targach Poznańskich.

Eleganckie osiedle na poznańskim Łazarzu wybudowane przez dewelopera BPI to aż cztery budynki mieszkalne z 269-cioma mieszkaniami. Prezentowany lokal zatem idealnie wpisuje się w to miejsce jako propozycja miejsca pod piekarnię czy cukiernię. Ale też jako lokal biurowy czy usługowy.

OPIS

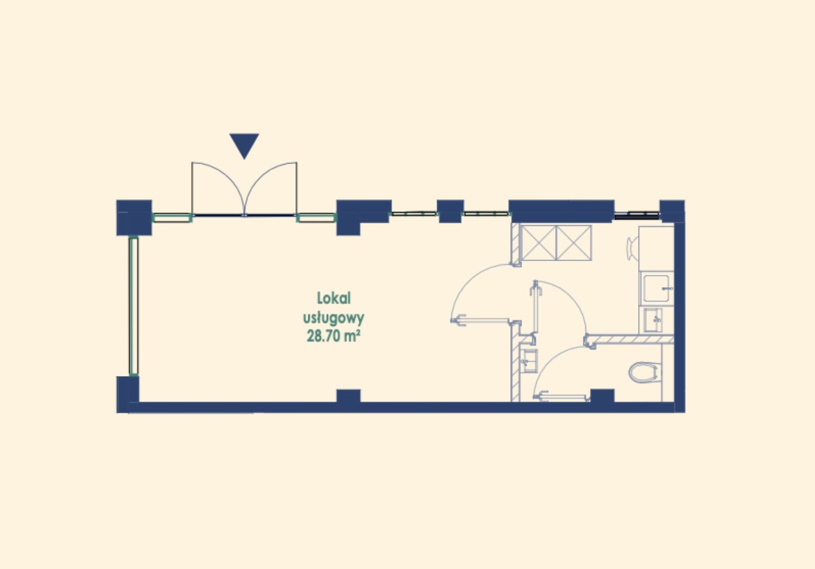
Lokal usytuowany jest na parterze budynku położonego przy ul. Kawaleryjskiej (odchodzącej od ul. Matejki). Wejście bezpośrednio z ulicy poprzez duże, przeszklone drzwi wraz z witryną. Powyżej drzwi miejsce na nazwę/szyld. Lokal narożnikowy, bardzo jasny, dodatkowo z dużym oknem na drugiej ścianie.

Powierzchnia lokalu to 28,70 m2, na którą składają się:

  • Pomieszczenie główne
  • Aneks kuchenny/pomieszczenie socjalne
  • Toaleta

Lokal w stanie deweloperskim, wnętrze do uzgodnienia i wykończenia, a także zaaranżowania we własnym zakresie i wg. własnych potrzeb.

Miejsce monitorowane na zewnątrz.

MEDIA:

  • prąd
  • woda
  • światłowód
  • ogrzewanie cieplik miejski

OPŁATY I WARUNKI NAJMU:

  • Miesięczny czynsz najmu wynosi 3.300 zł
  • Opłata do wspólnoty oszacowana zostanie po oddaniu lokalu do użytku (w tym ogrzewanie, woda, śmieci, fundusz remontowy).
  • Dodatkowo płatne: prąd, Najemca osobiście zawiera umowę z dostawcą prądu
  • Kaucja zabezpieczająca: 5.000 zł
  • Umowa zawierana na minimum 1. rok, preferowany klient długoterminowy

LOKALIZACJA

Klimatyczny Łazarz przeżywa obecnie swój renesans. Miejsce znane z licznych kafejek, restauracji czy winiarni. W pobliżu liczne tereny zielone, tj. przepiękny Park Wilsona z Poznańską Palmiarnią czy Park Jana Kasprowicza z poznańską Areną, miejsca do spacerów i wytchnienia w miejskiego zgiełku.

Pobliski City Park to z kolei miejsce znane na mapie Poznania licznych bardzo dobrych restauracji i możliwości spotkań towarzyskich i biznesowych.

Międzynarodowe Targi Poznańskie znajdują się 5 minut spacerem od prezentowanego lokalu, natomiast wokół mamy liczne apartamenty czy miejsca noclegowe na wynajem.

Lokal bardzo dobrze skomunikowany z centrum miasta. Przystanek tramwajowy “Matejki” przy ul. Grunwaldzkiej znajduje się w odległości 400 m, a przystanek tramwajowy “Park Wilsona” przy ul. Głogowskiej w odległości 500 m. Natomiast przystanek autobusowy znajduje się tuż przy ul. Matejki, zaledwie 1-minutę od lokalu.

W przypadku wszelkich pytań pozostajemy do dyspozycji telefonicznie lub zapraszamy do biura WGN Poznań Krauthofera.

Numer licencji agenta prowadzącego ofertę: 24516

Grupa WGN Największy Polski Koncern Obrotu Nieruchomościami Poznań, ul. Krauthofera 18 lok. 56.

Pomagamy bezpłatnie w uzyskaniu kredytu hipotecznego na zakup nieruchomości oraz możliwość wyboru najkorzystniejszej oferty spośród kilkunastu banków. Przy transakcji zakupu zapewniamy obsługę notarialną.

Informacje dotyczące nieruchomości zostały sporządzone na podstawie oświadczeń i nie są ofertą w rozumieniu przepisów prawa, mają charakter wyłącznie informacyjny i mogą podlegać aktualizacji, zalecamy ich osobistą weryfikację.

Wszystkie teksty, rysunki, zdjęcia oraz wszystkie inne informacje opublikowane na niniejszych stronach podlegają prawom autorskim Grupa WGN Koncern Obrotu Nieruchomościami Poznań, ul. Krauthofera 18 lok. 56. Wszelkie kopiowanie, dystrybucja, elektroniczne przetwarzanie oraz przesyłanie zawartości bez zezwolenia zabronione. Wszelkie prawa zastrzeżone.

WGN nieruchomości

Zainteresowała Cię oferta?

Skontaktuj się z nami

Estera Szeląg

Tel: 666613045

E-mail: e.szelag@wgn.pl