Lokal mieszkalny przystosowany jako biuro / kancelaria, 82,4 m2, 2 miejsca postojowe, Poznań.
WGN Poznań Krauthofera oferuje do sprzedaży lokal mieszkalny usytuowany na parterze budynku mieszczącego się na poznańskim Grunwaldzie, przy ul. Krzywej.
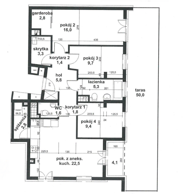
Lokal mieszkalny oraz jego wnętrze zaprojektowane przez architekta stricte pod wykonywaną tam aktualnie działalność, kancelarię prawną. Wnętrze wykończone z dbałością o każdy szczegół, a układ maksymalnie wykorzystuje przestrzeń. Istnieje możliwość przywrócenia lokalu do pierwotnego kształtu i wyodrębnienia 4 pokoi, w tym salonu z aneksem kuchennym, pokoju z garderobą, łazienki i wc.
Atuty:
Duże, przestronne, eleganckie mieszkanie z własnym tarasem o powierzchni 50 m2. W hali garażowej mieszczącej się pod budynkiem do dyspozycji dwa miejsca postojowe. Istnieje możliwość ich zakupu w cenie łącznej 50.000 zł.
Bardzo wygodna lokalizacja ze względu na szybki dojazd drogą dwupasmową do węzła Komorniki oraz wyjazd na autostradę.
Budynek:
Mieszkanie znajduje się w spokojnej części miasta, na parterze budynku wybudowanego w 2012 r. przez dewelopera BTM z Poznania. Budynkiem zarządza wspólnota mieszkaniowa.
Lokalizacja, komunikacja, co w okolicy:
Miejsce bardzo dobrze skomunikowane z pozostałymi częściami miasta za pomocą komunikacji tramwajowej oraz autobusowej. Najbliższy przystanek „Sielska” znajduje się w odległości 200 m z liniami tramwajowymi nr 5, 14 i autobusowymi nr 23 i 223.
Z kolei w odległości 500 m znajduje się zarówno zajezdnia tramwajowa, jak i przystanek kolejowy Poznań Górczyn.
Szybkie zakupy można zrobić w Żabce (150 m). Na większe zakupy można udać się do centrum handlowego Auchan Komorniki (5 km i 8 minut jazdy autem).
Szybki dojazd do dworca PKP oraz centrum handlowego Avenida (w kierunku centrum miasta).
W kierunku miasta jadąc ulicą Głogowską napotkamy wiele restauracji czy barów.
Opis mieszkania:
Powierzchnia mieszkania to 82,4 m2, na którą składają się następujące pomieszczenia (aktualnie):
• Gabinet 26,5 m2 z wyjściem na taras 50 m2
• Gabinet 20 m2
• Salka konferencyjna 16 m2
• Archiwum 5 m2
• Hol 7,2 m2
• Kuchnia 2,8 m2
• WC 1,6 m2
• Łazienka 3,3 m2
* drugi rzut dołączony do galerii zdjęć, przedstawia oryginalny wygląd mieszkania, przed zmianą.
Forma własności:
Mieszkanie stanowi pełną własność z wydzieloną Księgą Wieczystą. Miejsca postojowe na odrębnej Księdze Wieczystej.
Opłaty:
Miesięczny czynsz do wspólnoty wynosi 420 zł obejmujący zaliczki za wodę zimną, fundusz remontowy, eksploatację. Opłata miesięczna do wspólnoty za każde miejsce postojowe wynosi 122 zł. Dodatkowo płatne prąd oraz gaz.
W przypadku wszelkich pytań pozostajemy do dyspozycji. Zapraszamy na prezentację!
Nr licencji agenta prowadzącego ofertę: 24516
Grupa WGN Największy Polski Koncern Obrotu Nieruchomościami Poznań, ul. Krauthofera 18 lok. 56.
Pomagamy bezpłatnie w uzyskaniu kredytu hipotecznego na zakup nieruchomości oraz możliwość wyboru najkorzystniejszej oferty spośród kilkunastu banków. Przy transakcji zakupu zapewniamy obsługę notarialną.
Informacje dotyczące nieruchomości zostały sporządzone na podstawie oświadczeń i nie są ofertą w rozumieniu przepisów prawa, mają charakter wyłącznie informacyjny i mogą podlegać aktualizacji, zalecamy ich osobistą weryfikację.
Wszystkie teksty, rysunki, zdjęcia oraz wszystkie inne informacje opublikowane na niniejszych stronach podlegają prawom autorskim Grupa WGN Koncern Obrotu Nieruchomościami Poznań, ul. Krauthofera 18 lok. 56. Wszelkie kopiowanie, dystrybucja, elektroniczne przetwarzanie oraz przesyłanie zawartości bez zezwolenia zabronione. Wszelkie prawa zastrzeżone.














